• kontoret
  • prosjekter
  • kontakt
<

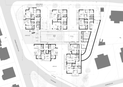
VÅLANDSTUN SENIORBOLIGER (2020)

Personvernerklæring